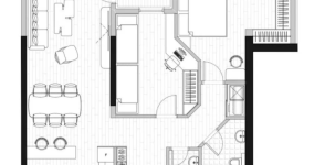
Prodaje se nov dvosoban stan povrsine 80 m2, sjajna lokacija-kompleks novih zgrada Green Level 2 izmedju trim staze, City kvarta i Tehnickog fakulteta, Baku ulica. Zgrada ima lift,...
Tip nekretnine | anja RSS feed for this section
244 000 €
Detaljnije

Prodaja, nov dvosoban stan, 80m2
Tološka šuma, Podgorica, Crna Gora-
80 m2
-
Nenamjesteno Garaža
-
2 Sobe
-
1 Kupatilo

2,804